
Architecture Firm: PORTAL92
Location: Patparganj, New Delhi, India
Category: Institutional Architecture, Landscape and Interiors
Team: Aanchal Sawhney, Sagar Goyal, Astha Verma, Richa Malhotra, Sadiya Alvi, Adrijaa Bhuyan, Raja Parikshit
Area: 1504.59 sqm
Project Year: 2022
Photographs: Niveditaa Gupta

#BacktoSchool:
Situated in the dense neighborhood of Patparganj, East Delhi, Plato Public School by Portal92 aims to architecturally explore the playful nature of a primary educational institution.
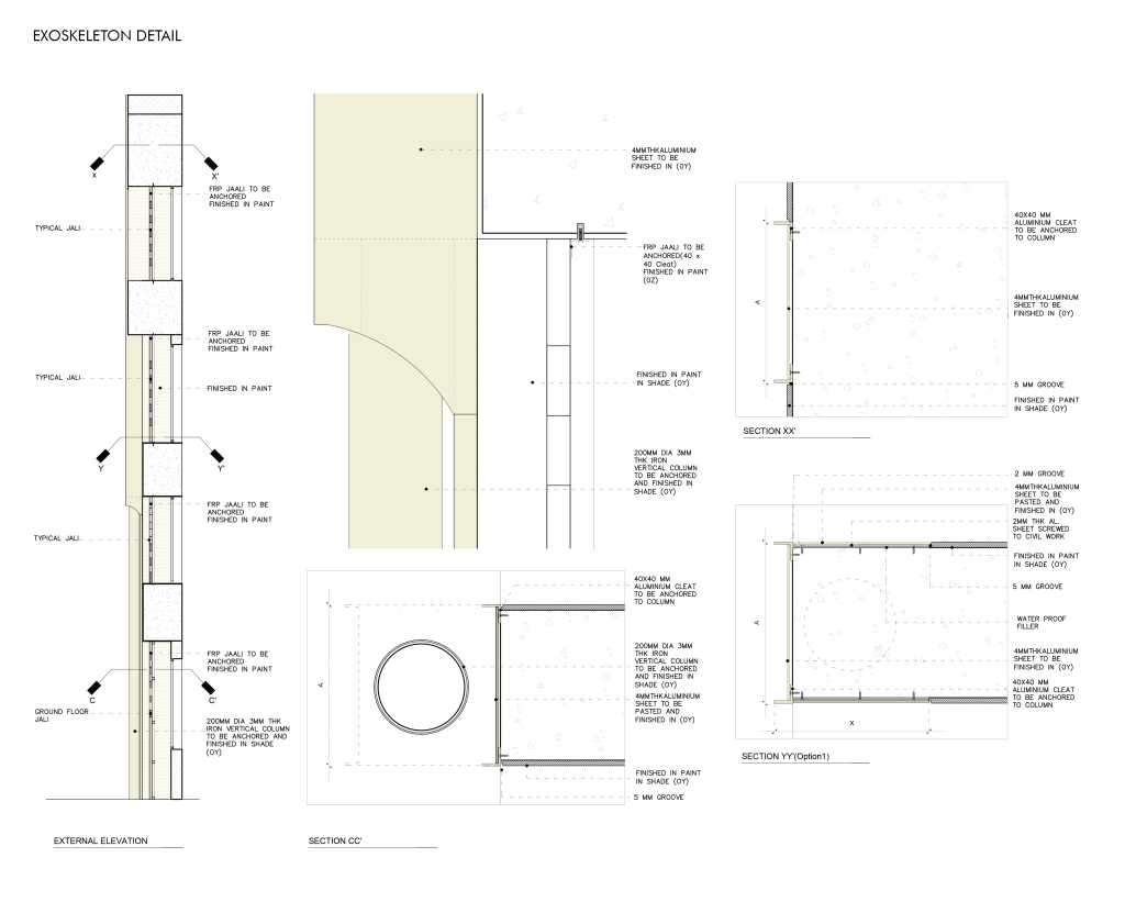
Reconceptualizing the school’s story entailed exploration of the built environment as a starting point of awareness in children. The previous establishment presented itself as a top-heavy façade with a series of symmetrical windows running along its span. Featured with columns jutting out, the former façade was carefully tackled by anchoring it to the ground with the addition of an exoskeleton; comprising of slender mild-steel section frames and piping that volumetrically evolve as they go upward.

Coupled with the steel sections are a set of repeating jaalis across the façade adorned by large circular punctures, intended to extend the playful character and punctuate the symmetrical windows. The juxtaposition of the horizontal and vertical treatments intersects with the gigantic Royal Palm trees, resulting in the volumes being read along their axes, as one glances from afar.

Attempting to transcend the physical – Plato Public School engages with the curiosities of a forming mind through its bold geometry and exuberant color palette.




