
Location: Preet Vihar, New Delhi-110062
Category: Residential
Design Team: Sagar Goyal, Aanchal Sawhney
Area: 300.0 m2
Photographs: Niveditaa Gupta
Manufacturers: Möbel Grace, Interior Craft, Span
Project Year: 2018

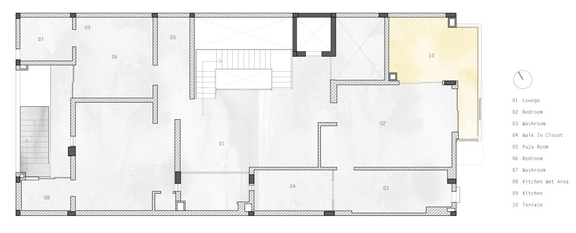
The house was designed for a family of four in the hustle bustle of one of East Delhi’s neighborhoods. The plot was a typical requirement for plotted development with a row of adjoining 300sq.m. plots. The exterior has been cladded with a natural finish lime stone which is soft to the touch and cool to the eye under the brutal Delhi sun. Following a groove pattern based on the interactions of materials and of the buildings form, each volume that extrudes or sinks the form leaves Lines across the Lime.

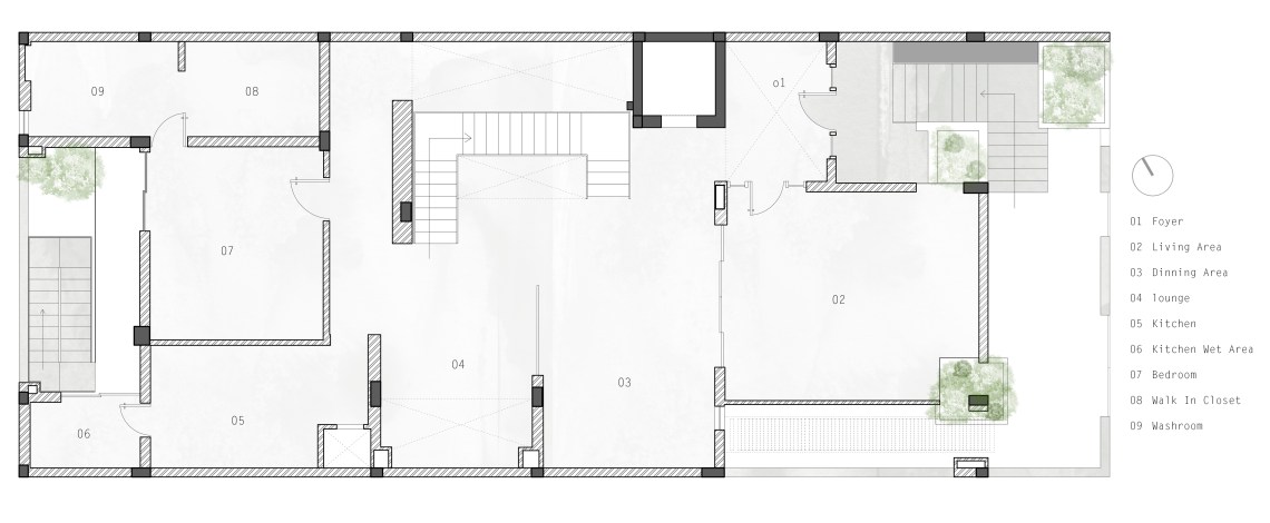
A staircase wrapped around a planter in the stilt functions as the main entrance to the ground with a wall of trickling water flowing alongside, leading you to an entrance porch naturally shaded by the terrace overhead.

The internal staircase was built using a folded sheet underbelly and mild steel plates as girders for load transfer and mounting the railing. The roof of the staircase is formed by a L-shaped skylight to enable natural light to filter through the whole house.




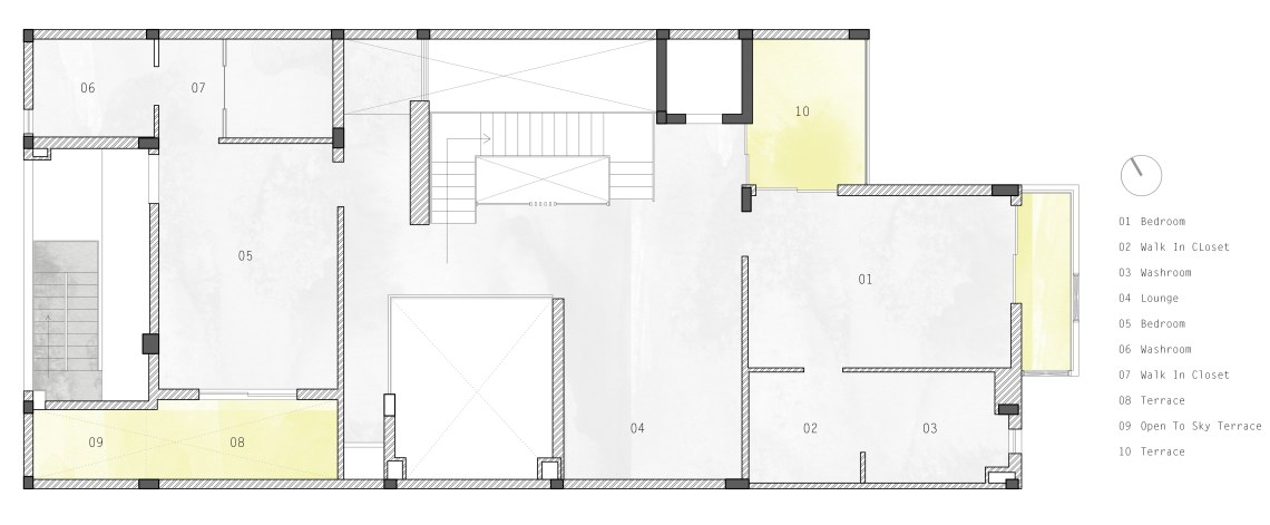
A customised movable screen solution was designed to provide shading from the morning sun and, privacy in a densely populated surrounding. The same screen system extends from stilt till the terrace forming a canopy for the recreational space on the terrace. Some corners of the building are dotted with planters camouflaging into the skin of the house leaving behind just an outcrop of green onto the built.





